CHEZ ÉLISABETH & VINCENT
Route de Castellar, Menton, France

Cet appartement, situé sur les hauteurs de Menton, à été entièrement refait, conjointement par Yoann Constant de L'Atelier d'Architecture CSD et par Delphine Boigues, architecte HMONP.
Lumières Architecturales est intervenu sur le projet afin de pouvoir satisfaire les demandes particulières des propriétaires, en matière d'éclairages et apports de lumière artificielle. La recherche de nouveaux dispositifs d'éclairages à inclure dans le projet à également été effectuée afin d'aider les propriétaires.
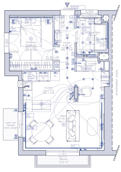
Plan Électricité du projet




Couloir d'entrée
Le projet dispose de différents systèmes d'éclairage intégrés, principalement composés de bandeaux LED placés dans des corniches, permettant à la lumière indirecte apportée, de se développer le long des murs et plafond afin de rendre l'atmosphère chaleureuse, douce et apaisante.



